Лист 1

Дизайн проект. Титульный лист

Лист 2

Ведомость листов основного комплекта чертежей

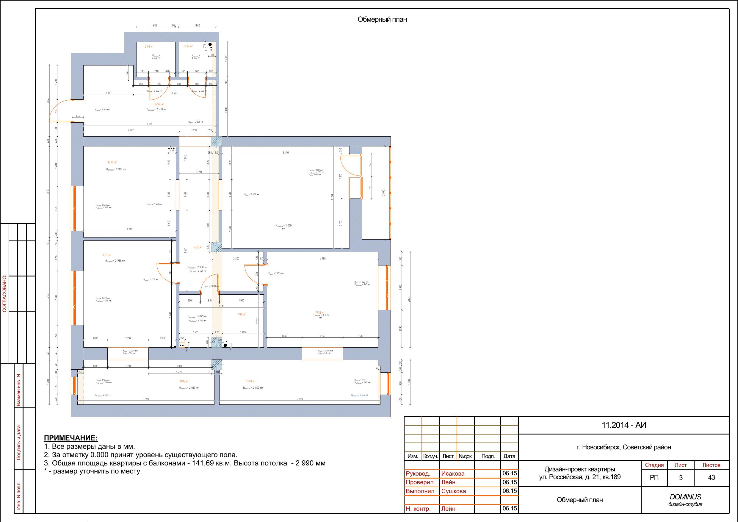
Лист 3

Обмерный план

Лист 4

План демонтируемых перегородок

Лист 5

План возводимых перегородок

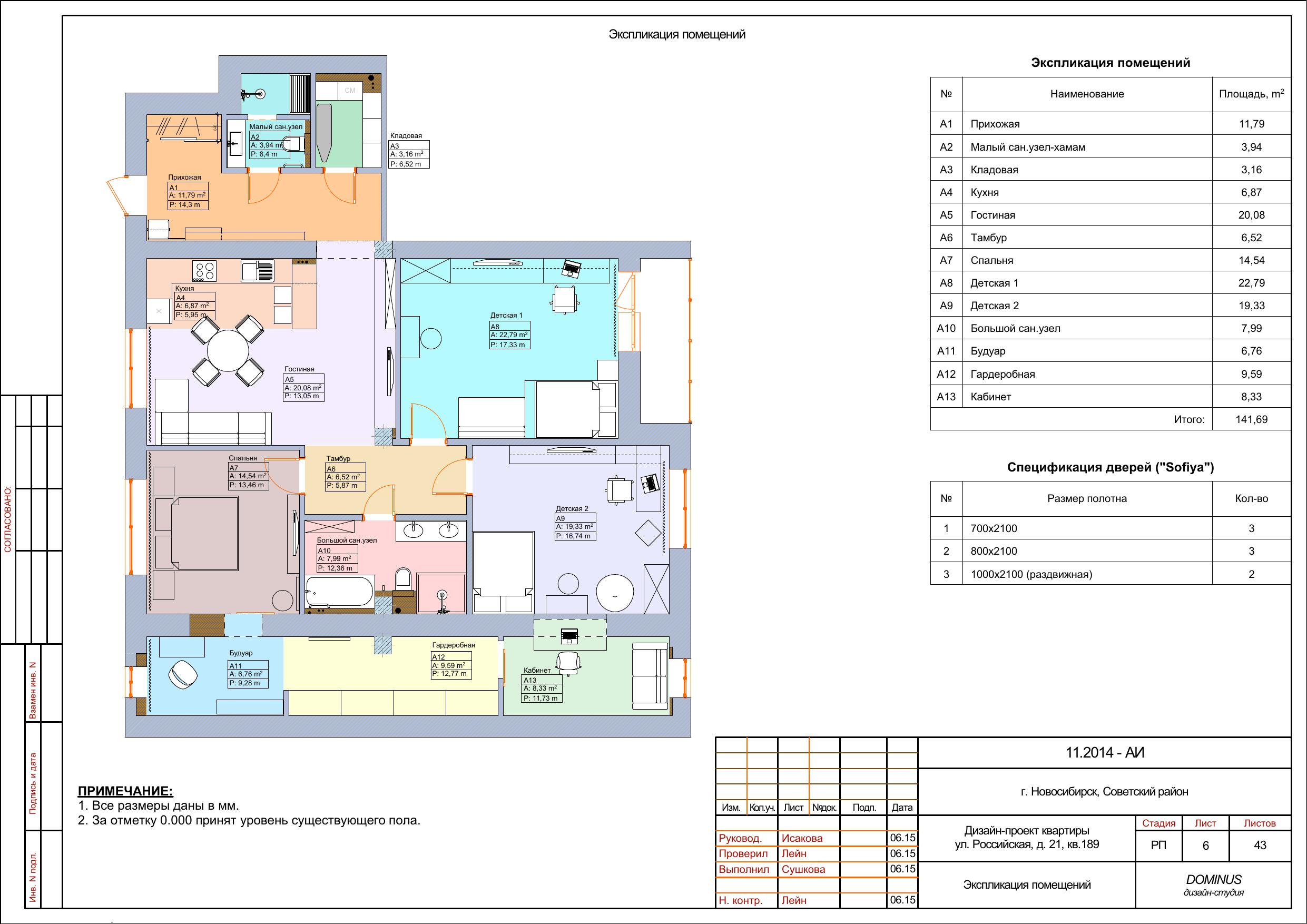
Лист 6

Экспликация помещений

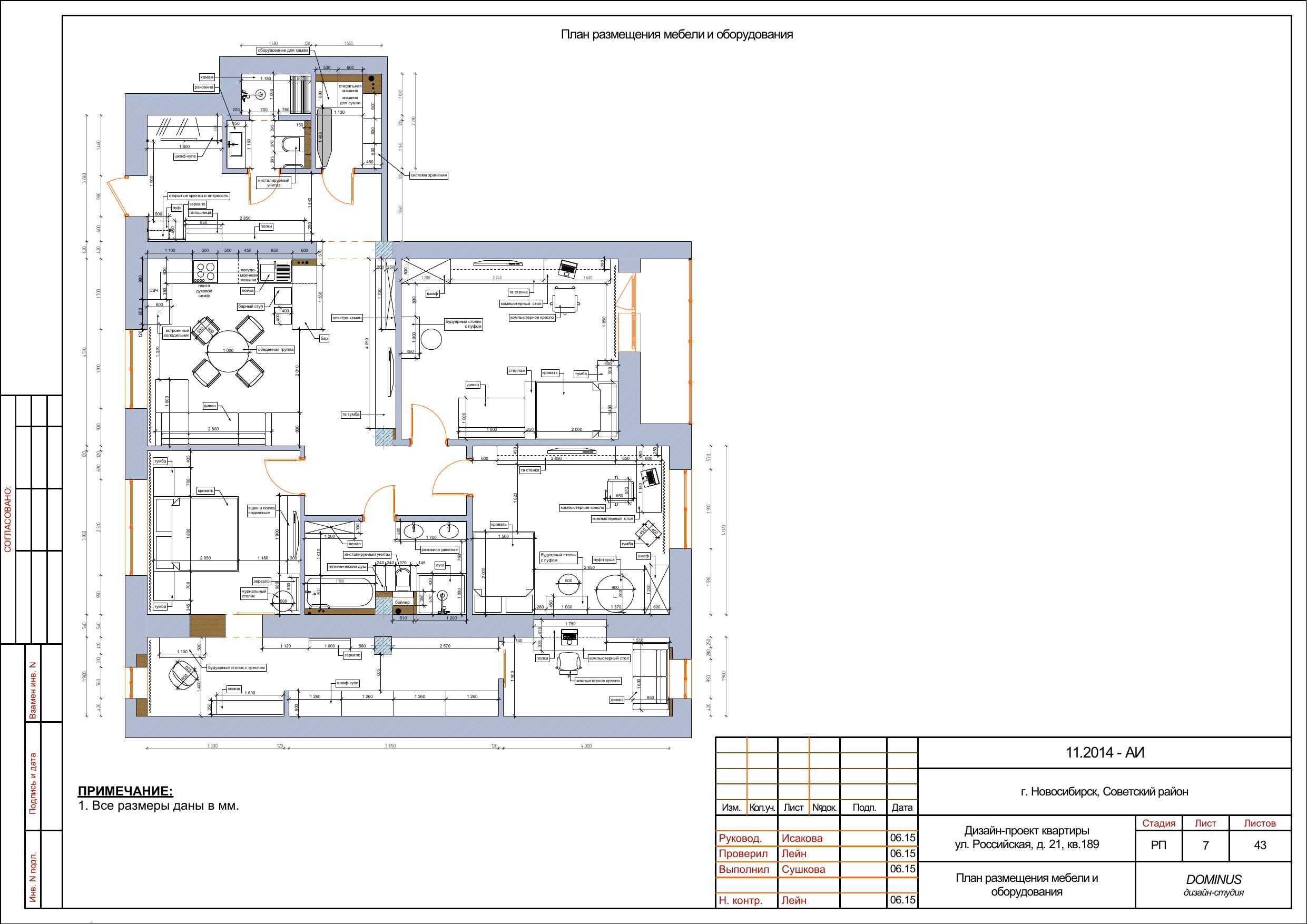
Лист 7

План размещения мебели и оборудования

Лист 8

План раскладки напольных покрытий

Лист 9

Схема "теплого пола"

Лист 10

Схема конфигурации потолков

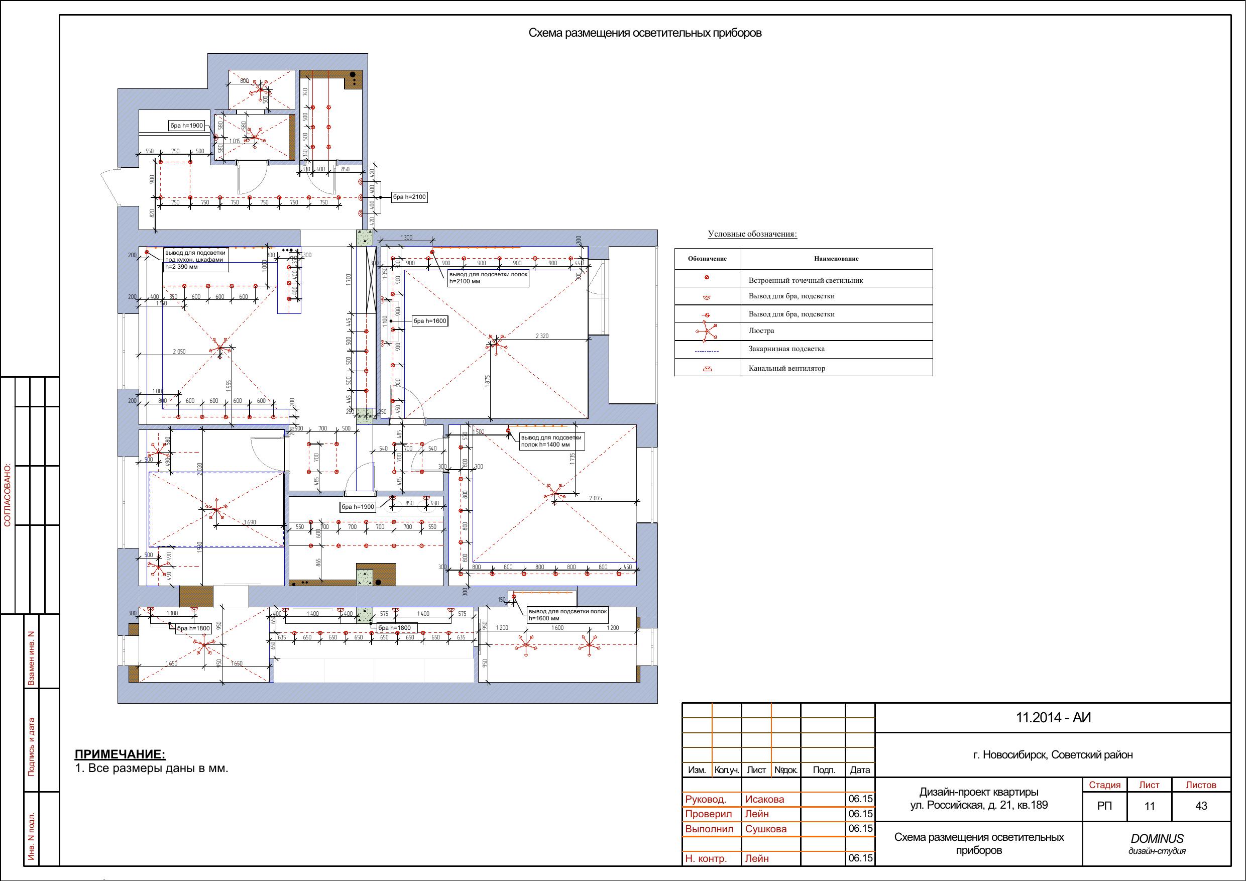
Лист 11

Схема размещения осветительных приборов

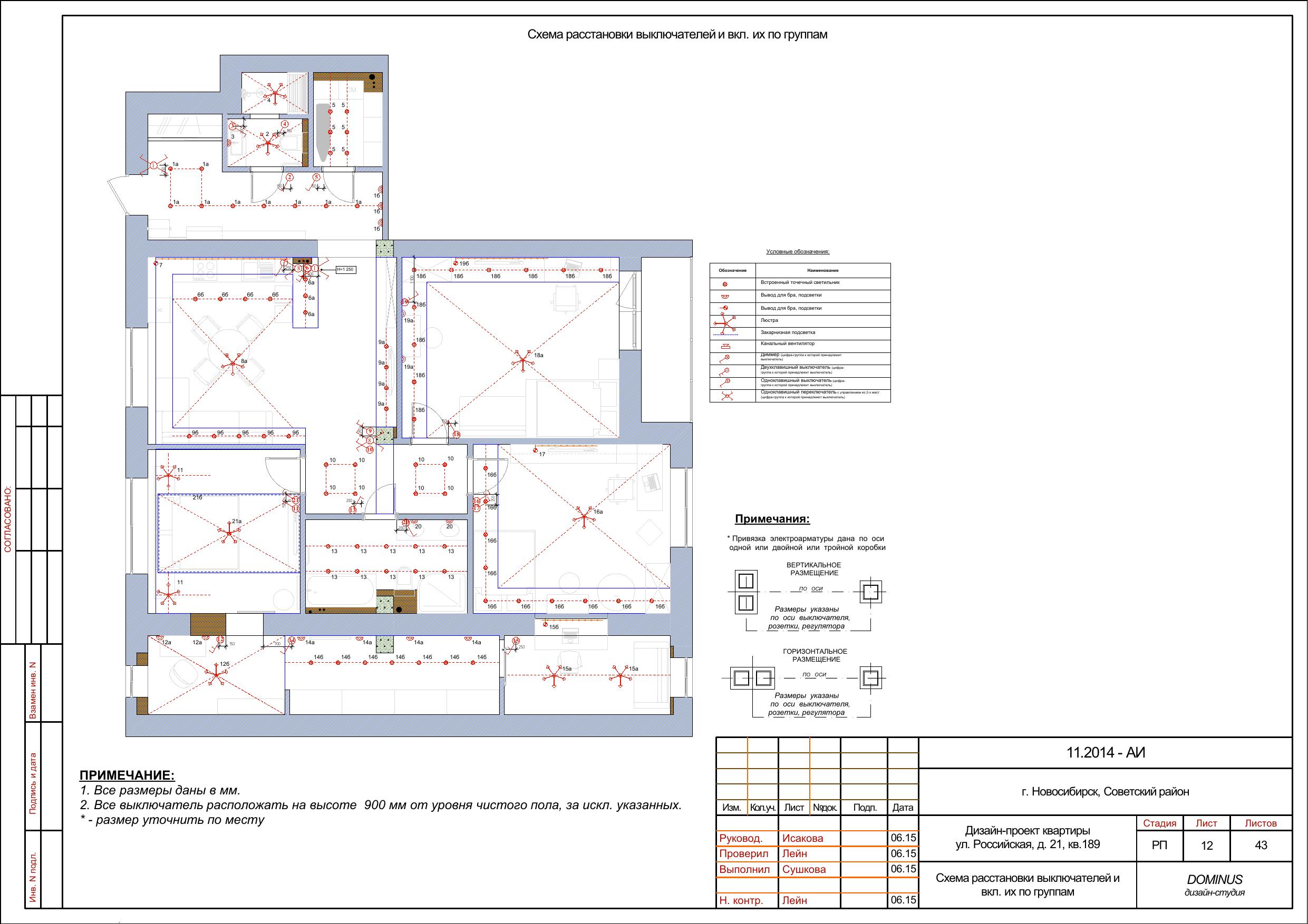
Лист 12

Схема расстановки выключателей и вкл. их по группам

Лист 13

Ведомость электрооборудования

Лист 14

Схема размещения электро-, телевизионных и телефонных розеток

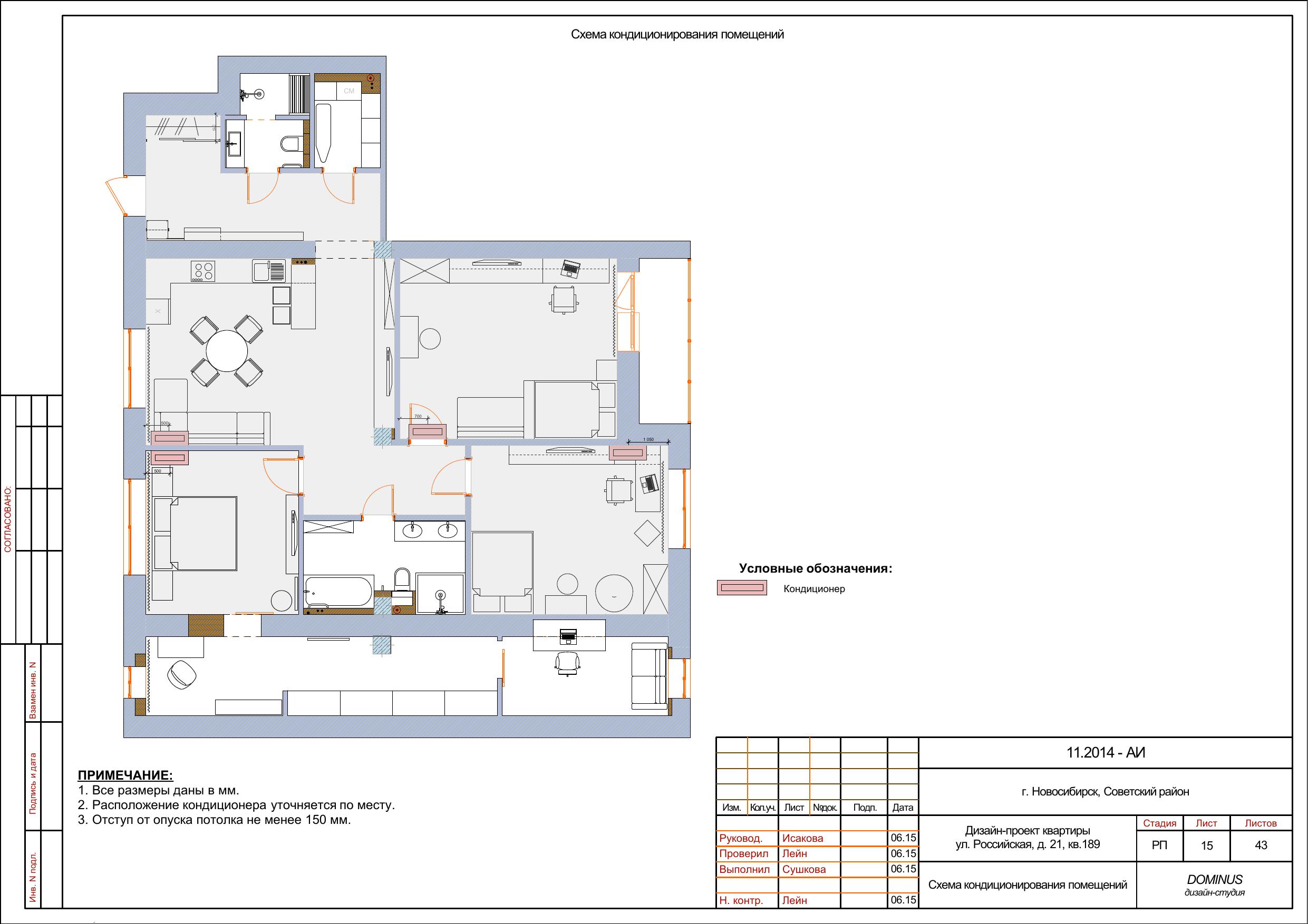
Лист 15

Схема кондиционирования помещений

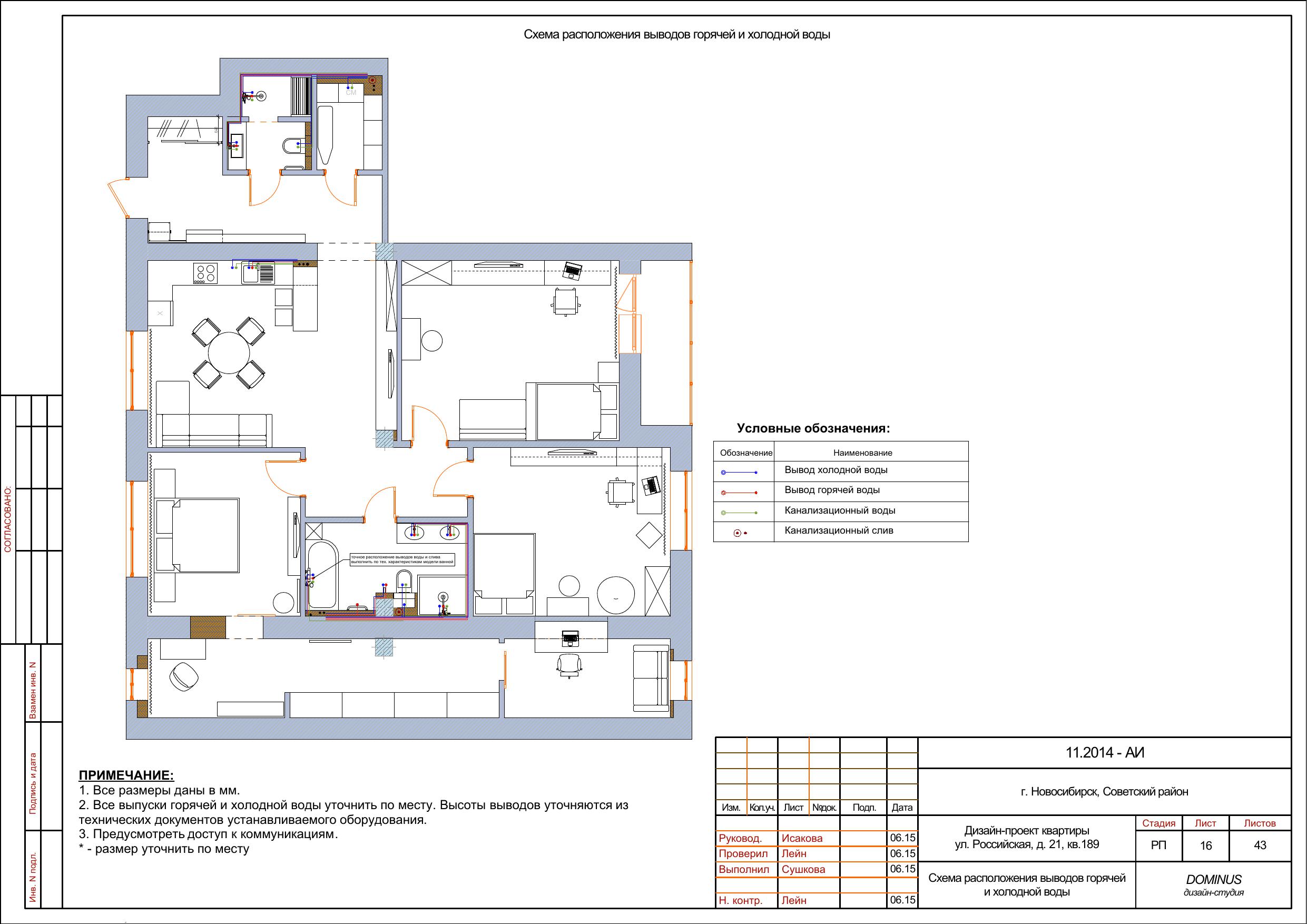
Лист 16

Схема расположения выводов горячей и холодной воды

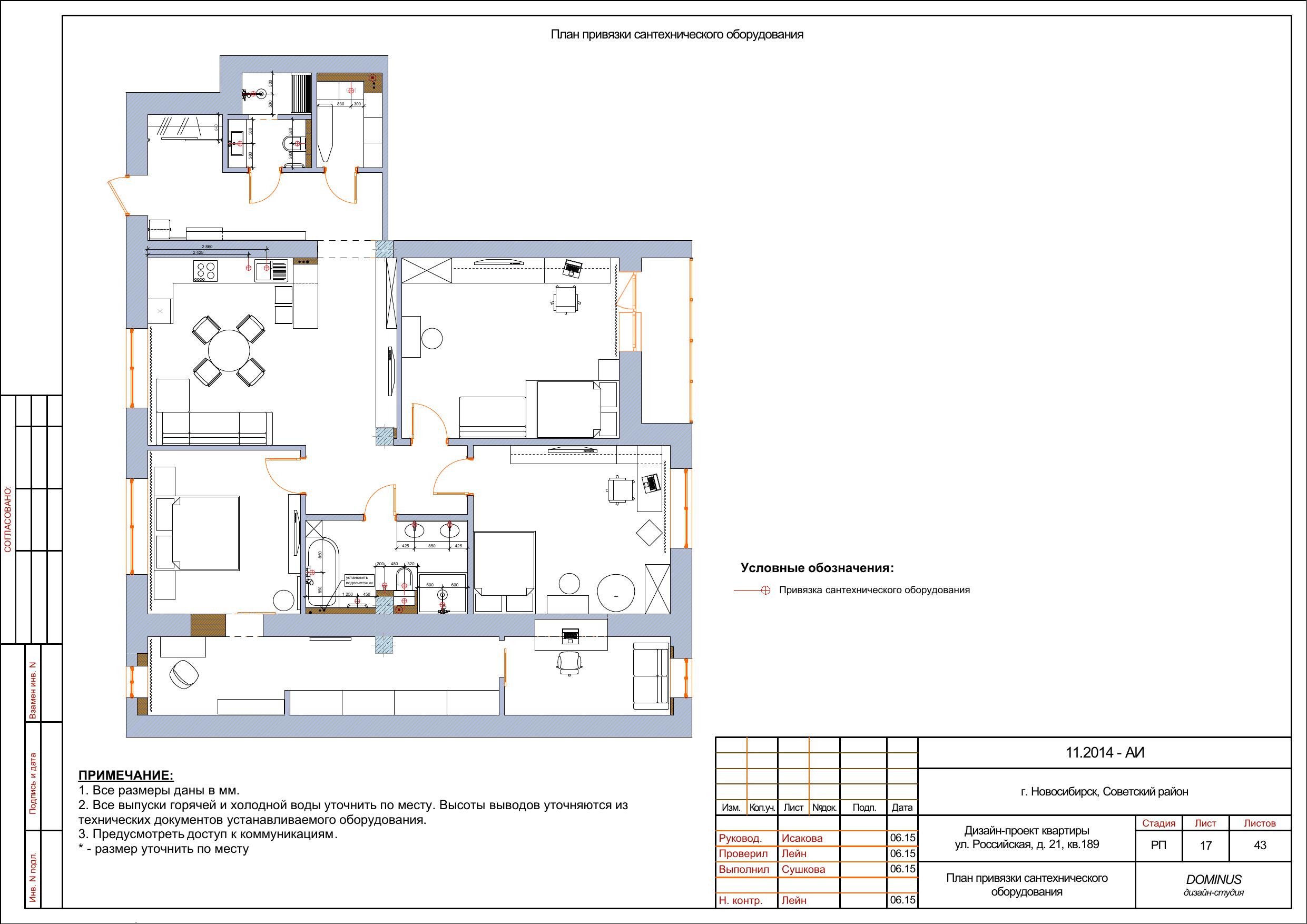
Лист 17

План привязки сантехнического оборудования

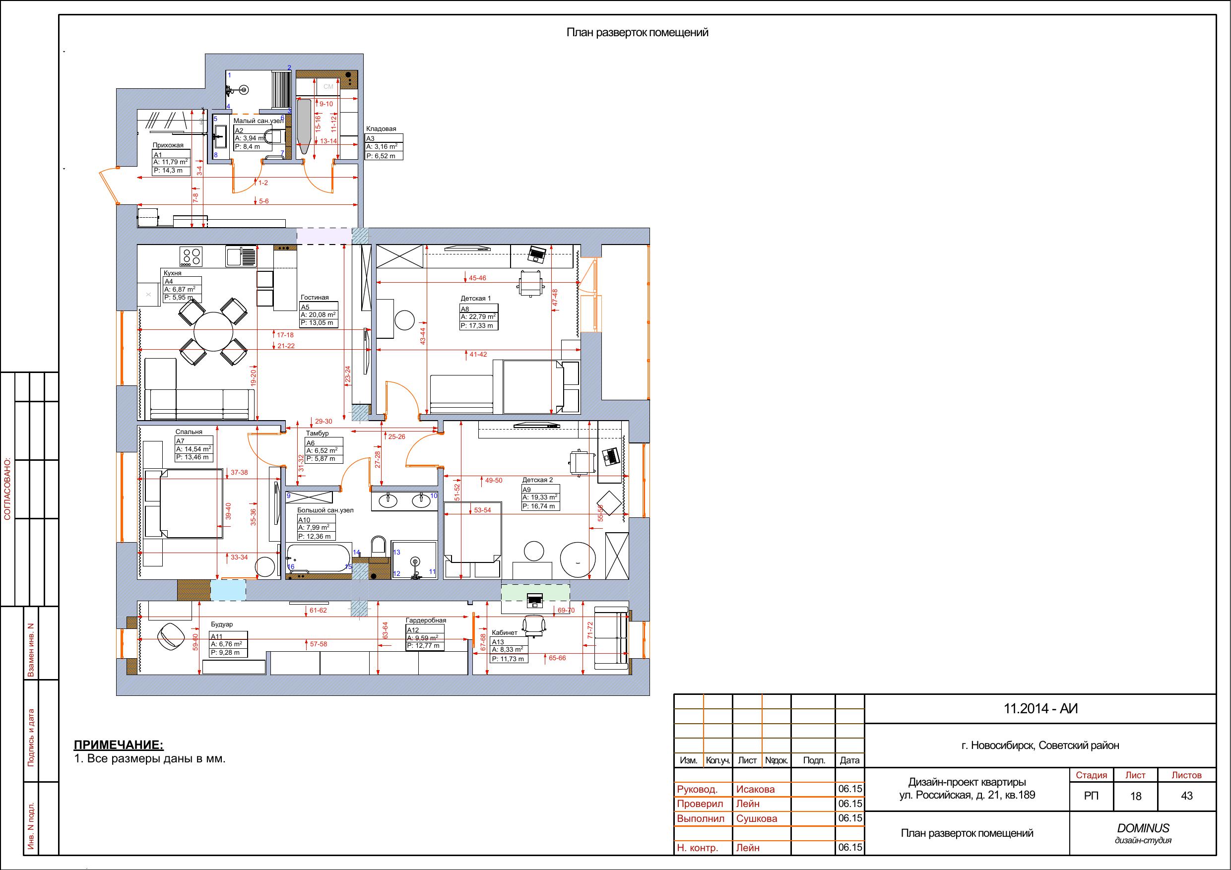
Лист 18

План разверток помещений

Лист 19

Развертка прихожей

Лист 20

Развертка кладовой

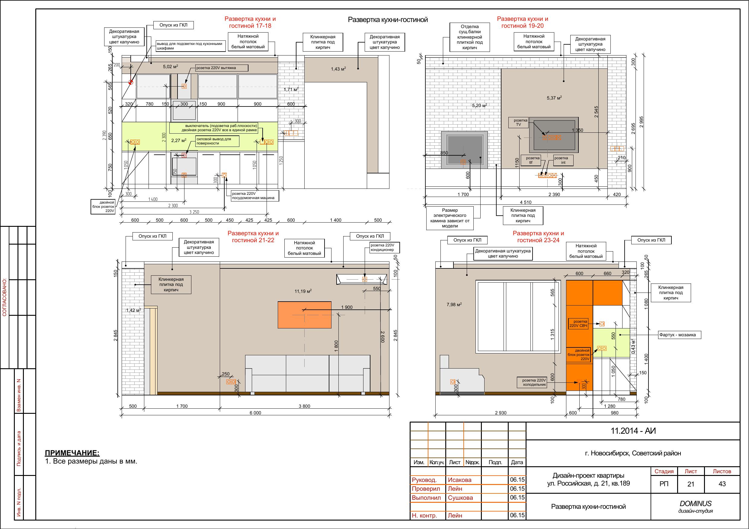
Лист 21

Развертка кухни-гостиной

Лист 22

Развертка тамбур

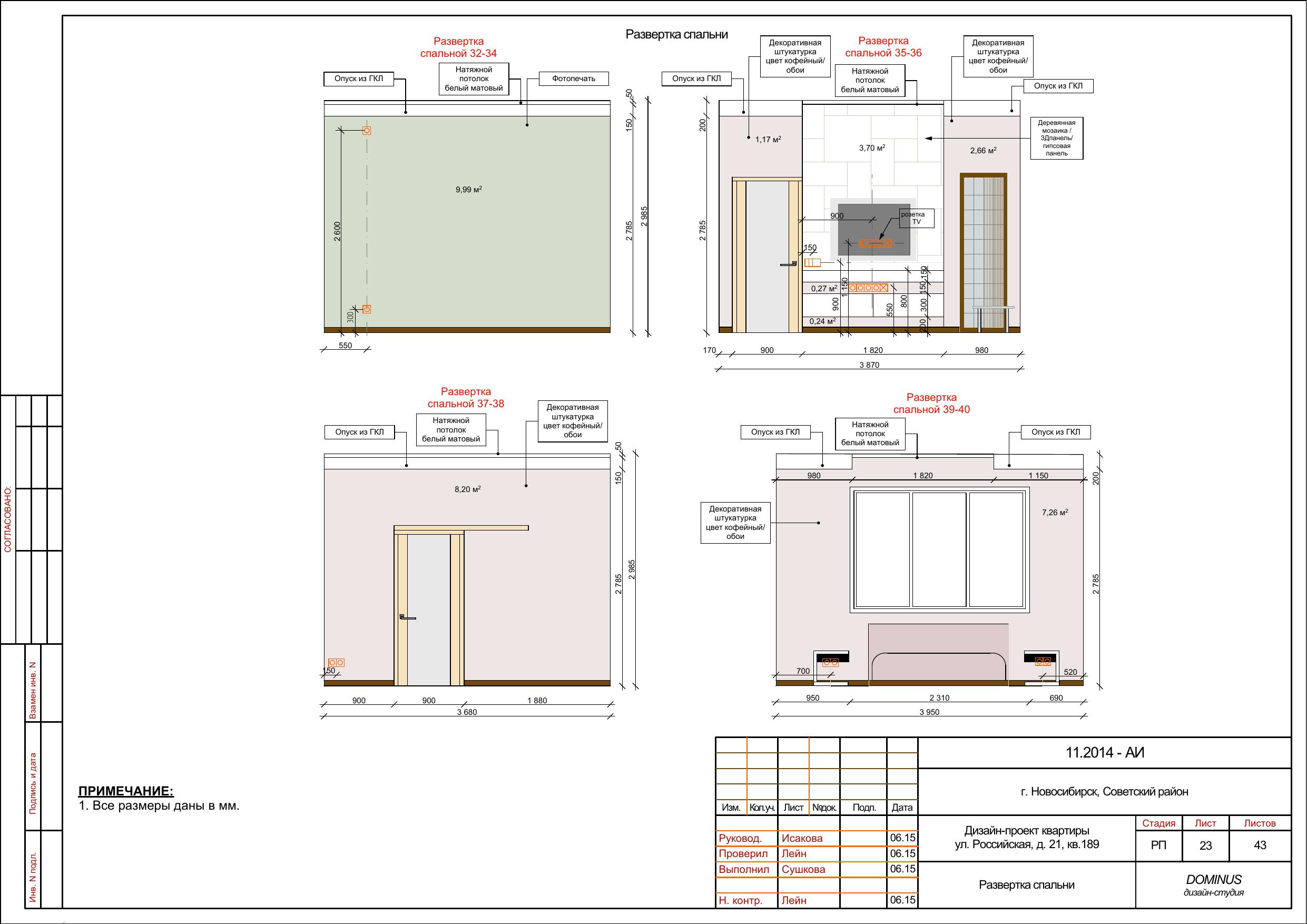
Лист 23

Развертка спальни

Лист 24

Развертка гардеробная

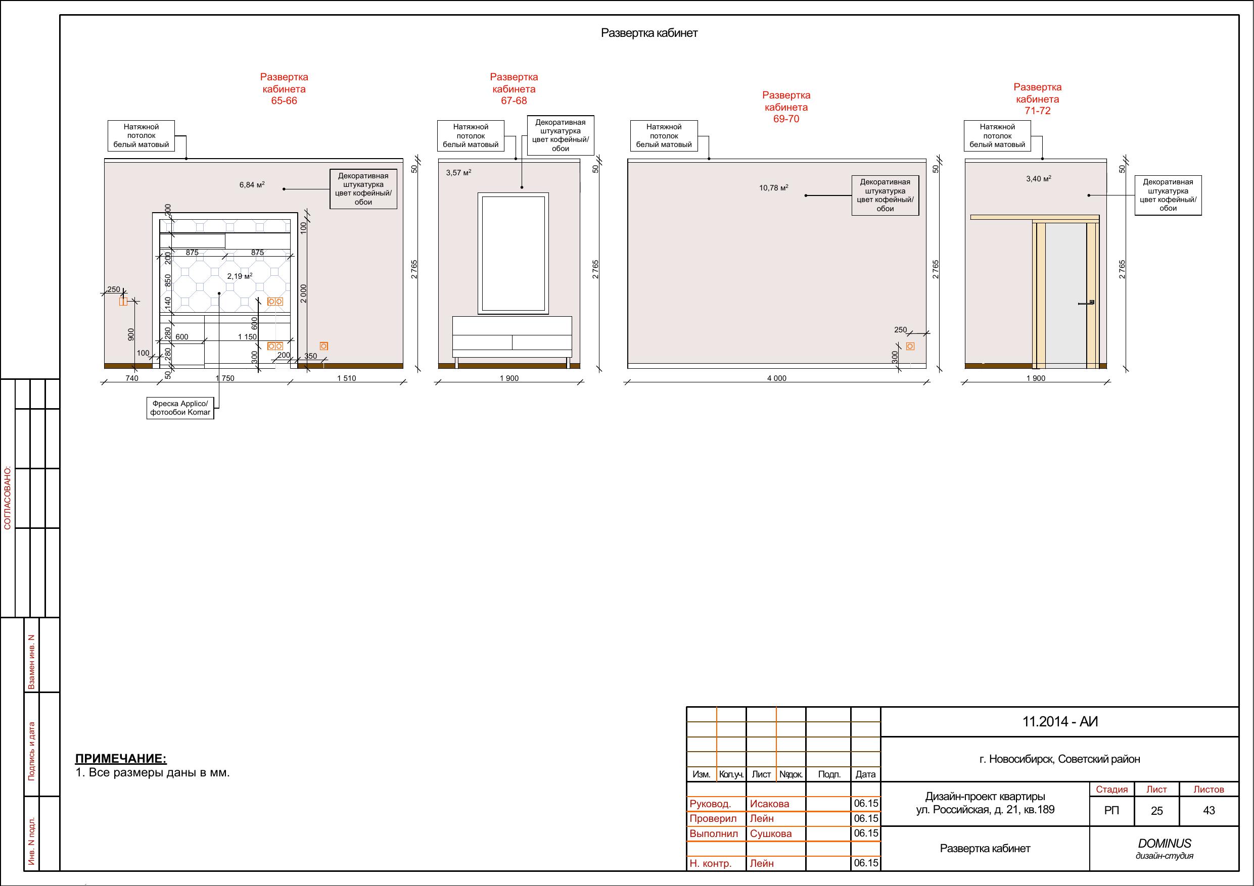
Лист 25

Развертка кабинет

Лист 26

Развертка детская старшей дочери

Лист 27

Развертка детская младшей дочери

Лист 28

Развертка маленького санузла

Лист 29

Развертка большого санузла (ванной комнаты)

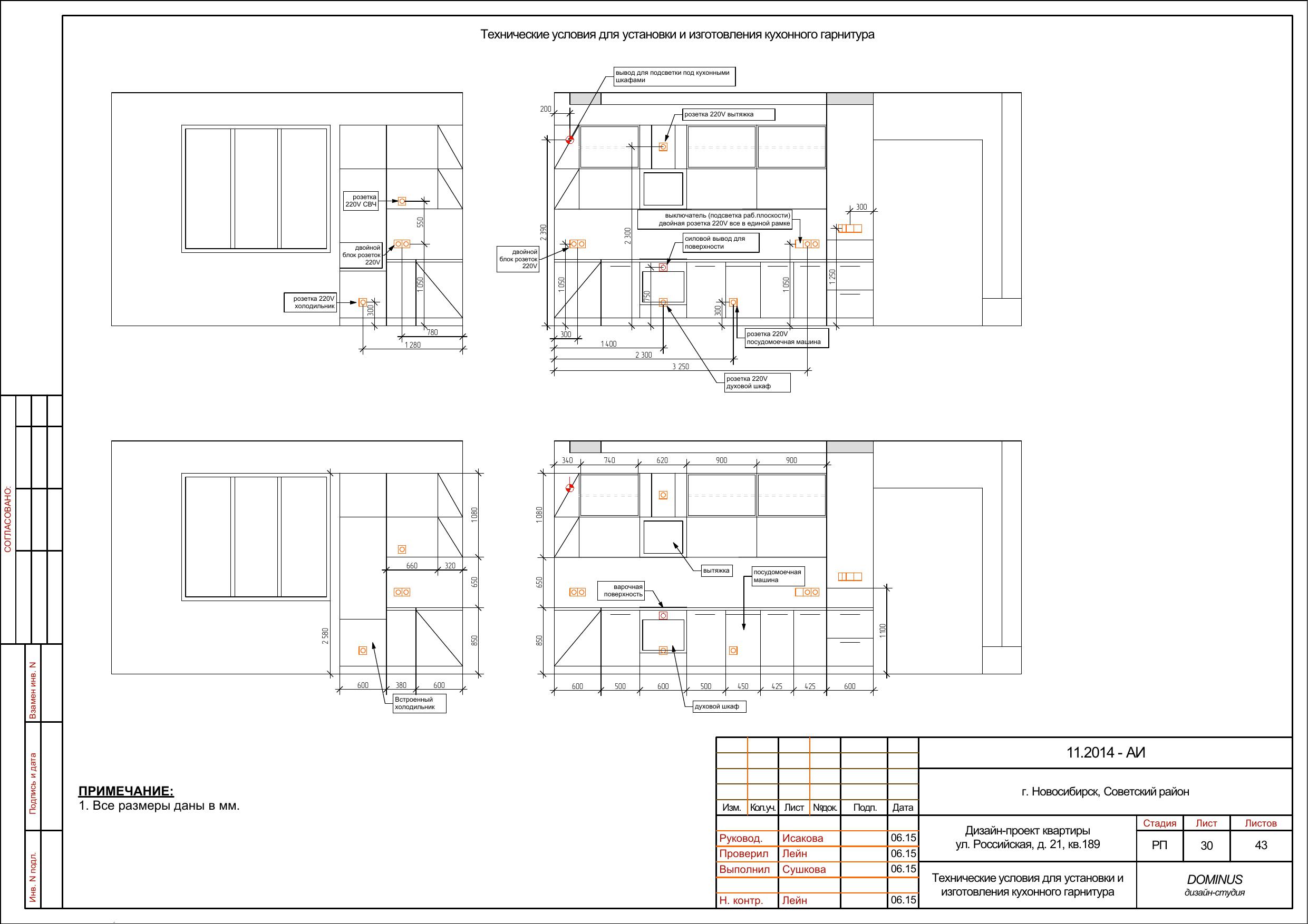
Лист 30

Технические условия для установки и изготовления кухонного гарнитура

Лист 31

Ведомость отделки помещений

Лист 32

Визуализация. Прихожая

Лист 33

Визуализация. Кухня-гостиная

Лист 34

Визуализация. Кухня-гостиная

Лист 35

Визуализация. Спальня

Лист 36

Визуализация. Гардеробная

Лист 37

Визуализация. Кабинет

Лист 38

Визуализация. Детская старшей дочери

Лист 39

Визуализация. Детская младшей дочери

Лист 40

Визуализация. Коридор

Лист 41

Визуализация. Кладовая

Лист 42

Визуализация. Маленький санузел

Лист 43

Визуализация. Большой санузел (ванная комната)